| 価格 | 2,790万円 ![]() |
||||
|---|---|---|---|---|---|
| 所在地 | 千葉県我孫子市新木野4丁目
新木野周辺の物件を見る |
土地面積 | 217.93m² (65.92坪) | 建物面積 | 105.16u |
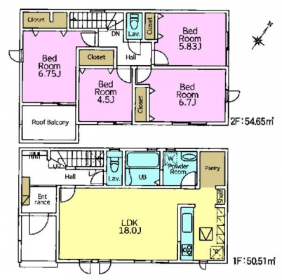
| 築年月 | 2025年12月築 | 間取り | 4LDK (LDK18/洋室4.5/洋室5.83/洋室6.7/洋室6.75) | ||
| 交通 |
JR成田線 新木 徒歩20分
JR成田線 布佐 徒歩45分 JR成田線 湖北 徒歩45分 |
||||
電話をかける(携帯・PHS可)
0120-271223
「ホームページを見た」とお伝え下さい。
お問い合わせ番号をお伝えください
RHS-185701-23024
| 特徴 |
|
|---|---|
| セールスコメント | 住宅ローンアドバイザーによるローンのご相談承ります。 |
| 採光面 | 南西 | 構造/階数 | 木造/地上2階建 |
|---|---|---|---|
| 建ぺい率 | 50(%) | 容積率 | 100(%) |
| 駐車場 | 有 | 現況/引渡し | 建築中/相談 |
| 土地権利 | 所有権 | 私道負担面積 | - |
| 接道状況 | 接道: 東南 公道 道路幅: 4.5m | 用途地域 |
第一種低層住居専用地域
|
| セットバック | - | 法令上の制限 | 防火地域 |
| 地目 | 宅地 | 地勢 | |
| 建築確認番号 | 第25UDI1W建06019号 | 都市計画 | 市街化区域 |
| 取引態様 | 仲介 | ||
| 情報更新日 | 2025年11月07日 | 次回更新日 | 2025年11月21日 |
| 小学校区 | 我孫子市立新木小学校 (千葉県我孫子市) この学区の他の物件を見る |
中学校区 | 湖北中学校 (千葉県我孫子市) この学区の他の物件を見る |
|---|
電話をかける(携帯・PHS可)
0120-271223
「ホームページを見た」とお伝え下さい。
お問い合わせ番号をお伝えください
RHS-185701-23024
| 価格 | 万円 | ||
|---|---|---|---|
| 年利率 | % |
||
| ボーナス払い | 返済年数 | ||
| 頭金 | 直接入力する | 万円 | |

毎月のご返済額 |
ボーナス(×年2回) |
物件価格2,790万円 |
電話をかける(携帯・PHS可)
0120-271223
「ホームページを見た」とお伝え下さい。
お問い合わせ番号をお伝えください
RHS-185701-23024
取手市を中心に新築一戸建て、中古一戸建て、土地などの物件情報を豊富に取り揃えております!住宅ローンについてのご相談などもお気軽にご連絡ください!取手市の不動産はセンチュリー21ハウスモアへお任せください!
【現在建設中!同仕様でのご案内可能】
成田線「荒木駅」徒歩20分!通勤通学にも便利!
国道356号線、県道170号線まで好アクセス!お車でも移動がしやすい住環境!