我孫子市中峠 2号棟 新築戸建 千葉県我孫子市中峠|3,590万円の新築一戸建て|分譲住宅や新築物件|ハウスモア株式会社

取手市中心に茨城の豊富な不動産情報!
購入・売却のエキスパートはセンチュリー21ハウスモア

営業時間:9:00〜19:00 / 定休日:水曜日

お問い合わせ
取手市の不動産 >
物件検索 >
新築一戸建て
>
我孫子市
>
JR成田線
>
我孫子市中峠 2号棟 新築戸建

新築一戸建て

我孫子市中峠 2号棟 新築戸建
お気に入り
価格 3,590万円 ローンシミュレーション
所在地 千葉県我孫子市中峠
中峠周辺の物件を見る
土地面積 163.89m² (49.58坪) 建物面積 105.15u
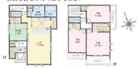
築年月 2026年4月築 間取り 4LDK (LDK16/和室4.5/洋室8.2/洋室6/洋室6)
交通
JR成田線 湖北 徒歩12分
JR成田線 新木 徒歩41分
JR成田線 東我孫子 徒歩43分
ここがおすすめ

【現在建築中!同仕様でのご案内が可能です!】
成田線「湖北駅」徒歩12分。
敷地面積49坪以上!
収納豊富な片付け上手な住まい。
スーパーも近く生活のしやすい住環境です

住宅ローン無料相談会


  • 現地外観写真 建設中です!施工例のご見学できます!
周辺環境や他物件もまとめてご案内可能です!不動産の事ならどんな事でもお気軽にご相談ください。
  • 間取り図 4LDKの魅力的な間取り!LDKはゆったりとした空間で、ご家族との団らん時間が、より一層充実したものになりますね。家族との仲が深まり、自然と笑顔が増えます!
  • その他 こちらは完成予想図です!
完成が楽しみですね。
いろいろなご希望がございましたら、お客様のご要望をどしどしお聞かせください。
  • その他現地 前面道路6m×7.3m!陽当り良好な立地です。
車庫入れが苦手な方も安心ですね。
  • 駐車場 駐車スペースは3台分あります!セカンドカーはもちろん、バイクや自転車なども置き場所に困りません。
  • その他現地 「この物件気になる!」「ここってどんな所?」「もっと詳しく知りたい!」と思ったら、お気軽にご相談ください。
  • 区画図 カースペースは3台付き!
セカンドカー持ちの方や急な来客時にも安心ですね。
  • 周辺環境 -
  • 周辺環境 -
  • 周辺環境 -
  • 周辺環境 -
  • 周辺環境 -
  • 周辺環境 -
  • 周辺環境 -
  • 周辺環境 -
  • 周辺環境 -
お問い合わせ、資料請求、見学のお申し込みはこちらから

電話をかける(携帯・PHS可)
0120-271223
「ホームページを見た」とお伝え下さい。

お問い合わせ番号をお伝えください
RHS-185701-26051

内見予約
お問合せ

セールスポイント

特徴
  • フローリング
  • バリアフリー
  • 給湯器
  • システムキッチン
  • カウンターキッチン
  • シャンプードレッサー
  • 追い焚き
  • シャワー
  • ガスコンロ
  • コンロ三口
  • バルコニー
  • TVドアホン
  • ペット対応
  • カースペース3台
  • 角地
  • カースペース2台以上
セールスコメント 住宅ローンアドバイザーによるローンのご相談承ります。

物件概要

採光面 東南 構造/階数 木造/地上2階建
建ぺい率 50(%) 容積率 100(%)
駐車場 現況/引渡し 建築中/相談
土地権利 所有権 私道負担面積 -

接道状況 接道: 南 公道 道路幅: 6m
接道: 東 公道 道路幅: 7.3m
用途地域
指定なし
セットバック - 法令上の制限 -
地目 宅地 地勢
建築確認番号 第25UDI1C建07536号 都市計画 市街化調整区域
取引態様 仲介
情報更新日 2026年04月17日 次回更新日 2026年05月01日
※各種情報と差異がある場合は現況優先となります

学区情報

小学校区 我孫子市立湖北小学校
(千葉県我孫子市)
この学区の他の物件を見る
中学校区 湖北中学校
(千葉県我孫子市)
この学区の他の物件を見る
※物件情報の学区情報について
当サイト物件情報に記載されております通学区域(学区)情報は、国土数値情報ダウンロードサービスが提供する小学校区データ【2016年度】及び中学校区データ【2016年度】を元に加工したものですので、記載情報が現在の学区域と異なる場合がございます。
国土数値情報ダウンロードサービスのWEBサイト上で記述通り、データは必ずしも正確とは言えません。また、通学区域(学区)は毎年見直しの対象となりますので、そちらを踏まえ学区情報は参考としてご活用下さい。
お問い合わせ、資料請求、見学のお申し込みはこちらから

電話をかける(携帯・PHS可)
0120-271223
「ホームページを見た」とお伝え下さい。

お問い合わせ番号をお伝えください
RHS-185701-26051

内見予約
お問合せ

この物件でローンシミュレーションする

価格 万円
年利率
ボーナス払い 返済年数
頭金 直接入力する 万円

毎月のご返済額

ボーナス(×年2回)

物件価格

3,590万円
※返済金額はあくまでも目安です。

電話をかける(携帯・PHS可)
0120-271223
「ホームページを見た」とお伝え下さい。

お問い合わせ番号をお伝えください
RHS-185701-26051

内見予約
お問合せ

お問い合わせ

お問い合わせ内容
お問合せ内容必須
【備考欄】
詳細な見学ご希望時間、ご質問、ご希望条件などがございましたらお聞かせ下さい。
(2000文字以内)
お客様情報
お名前必須
連絡先必須 メールアドレス

※ご記入いただいたメールアドレス宛てに、お問合せ内容の確認メールをお送りいたします。
※Yahoo!メールなどのフリーメールをご利用の場合、迷惑メールフォルダに入る場合があります。
 迷惑メールのフォルダ・設定等をご確認下さい。
電話番号
FAX(任意)
プライバシーポリシーを必ずご確認ください。内容に同意の上、確認画面へお進み下さい。

お気軽にお問い合わせください

0120-271223
物件番号 RHS-185701-26051
※「ホームページを見た」
とお伝え下さい。
ページトップへ
住宅ローン通します

取手市を中心に新築一戸建て、中古一戸建て、土地などの物件情報を豊富に取り揃えております!住宅ローンについてのご相談などもお気軽にご連絡ください!取手市の不動産はセンチュリー21ハウスモアへお任せください!