| 価格 | 3,280万円 ![]() |
||||
|---|---|---|---|---|---|
| 所在地 | 茨城県土浦市小岩田東2丁目
小岩田東周辺の物件を見る |
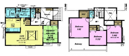
土地面積 | 221.44m² (66.99坪) | 建物面積 | 107.8u |
| 築年月 | 2026年7月築 | 間取り | 4LDK (LDK18.75/和室5.25/洋室5.25/洋室5.46/洋室8) | ||
| 交通 |
JR常磐線 土浦 徒歩33分/小岩田団地中央 バス14分 停歩2分
JR常磐線 荒川沖 徒歩60分 |
||||
電話をかける(携帯・PHS可)
0120-271223
「ホームページを見た」とお伝え下さい。
お問い合わせ番号をお伝えください
RHS-185701-26388
| 特徴 |
|
|---|---|
| セールスコメント | 住宅ローンアドバイザーによるローンのご相談承ります。 |
| 採光面 | 南西 | 構造/階数 | 木造/地上2階建 |
|---|---|---|---|
| 建ぺい率 | 50(%) | 容積率 | 100(%) |
| 駐車場 | 有 | 現況/引渡し | 建築中/相談 |
| 土地権利 | 所有権 | 私道負担面積 | - |
| 接道状況 | 接道: 北 公道 道路幅: 4m | 用途地域 |
第一種低層住居専用地域
|
| セットバック | - | 法令上の制限 | - |
| 地目 | 宅地 | 地勢 | |
| 建築確認番号 | 第R08SHC103491号 | 都市計画 | 市街化区域 |
| 取引態様 | 仲介 | ||
| 情報更新日 | 2026年05月09日 | 次回更新日 | 2026年05月23日 |
| 小学校区 | () |
中学校区 | () |
|---|
電話をかける(携帯・PHS可)
0120-271223
「ホームページを見た」とお伝え下さい。
お問い合わせ番号をお伝えください
RHS-185701-26388
| 価格 | 万円 | ||
|---|---|---|---|
| 年利率 | % |
||
| ボーナス払い | 返済年数 | ||
| 頭金 | 直接入力する | 万円 | |

毎月のご返済額 |
ボーナス(×年2回) |
物件価格3,280万円 |
![]() |
![]() |
土浦市小岩田東2丁目
3280万円 |
電話をかける(携帯・PHS可)
0120-271223
「ホームページを見た」とお伝え下さい。
お問い合わせ番号をお伝えください
RHS-185701-26388
取手市を中心に新築一戸建て、中古一戸建て、土地などの物件情報を豊富に取り揃えております!住宅ローンについてのご相談などもお気軽にご連絡ください!取手市の不動産はセンチュリー21ハウスモアへお任せください!
【現在建設中!同仕様でのご案内可能】
常磐線「土浦駅」バス14分徒歩2分!通勤通学にも便利!
土浦竜ケ崎線至近!国道6号線まで好アクセス!
周辺徒歩圏内に商業施設充実