柏市西原1丁目 新築戸建て 千葉県柏市西原1丁目|3,288万円の新築一戸建て|分譲住宅や新築物件|ハウスモア株式会社

取手市中心に茨城の豊富な不動産情報!
購入・売却のエキスパートはセンチュリー21ハウスモア

営業時間:9:00〜19:00 / 定休日:水曜日

お問い合わせ
取手市の不動産 >
物件検索 >
新築一戸建て
>
柏市
>
東武野田線
>
柏市西原1丁目 新築戸建て

新築一戸建て

柏市西原1丁目 新築戸建てNEW
お気に入り
価格 3,288万円 ローンシミュレーション
所在地 千葉県柏市西原1丁目
西原周辺の物件を見る
土地面積 123.24m² (37.28坪) 建物面積 95.98u
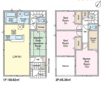
築年月 2026年2月築 間取り 4SLDK (LDK16/和室5/洋室7.5/洋室6.5/洋室5/S2.2)
交通
東武野田線 江戸川台 徒歩10分
東武野田線 初石 徒歩19分
東武野田線 運河 徒歩37分
ここがおすすめ

【完成しました!本日内見可能です!】
東武野田線「江戸川台駅」徒歩10分
安心の通学距離、小学校徒歩10分・中学校徒歩12分。
生活に便利!スーパーやコンビニ徒歩圏内

住宅ローン無料相談会


  • 現地外観写真 完成しました!当日のご案内が可能です。連絡いただければ、今すぐのご見学ができますのでお気軽にお問い合わせください。お仕事帰りにもどうぞ!
  • 間取り図 4SLDKのゆとりある間取りは、家族それぞれの居場所を確保しつつ、
LDKを中心にした動線で団らんの時間も豊かに。
全室収納完備で住空間をすっきり保てる設計です。
  • その他現地 前面道路は6.5m、明るく開放感のある立地です。
車庫入れが苦手な方も安心ですね。
  • 駐車場 駐車スペースは2台分あります!セカンドカーはもちろん、バイクや自転車なども置き場所に困りません。
  • リビング 家具はCGパースです。開放感のある広々LDK!ソファーやダイニングテーブルを置いても窮屈にならないので快適に過ごせます!コミュニケーションが取りやすいリビングです!
  • キッチン 収納スペースが豊富で、調理スペースがスッキリと片付きひろ〜く活用できます!
快適に作業ができます!毎日の料理が捗ります!
  • 洗面台・洗面所 小窓付きの明るい洗面室です!湿気もすぐに入れ替えができて清潔に保つことができます!自然光が差し込むのでお化粧の仕上がりも良くなりますね!
  • 浴室 落ち着きある大人の雰囲気のバスルームは、味が出ていてバスタイムが充実!
お仕事頑張っているご褒美にお好みの匂いの入浴剤を入れて、楽しんでみてはいかがでしょうか?
  • トイレ 1・2階にトイレがございます!朝の忙しい時間帯も待たずにすみそうですね。白を基調とした清潔感のあるトイレでお手入れがしやすいです!
  • 寝室 バルコニーに面している洋室です。明るく温もりがあり、換気もしっかりできます!朝起きて、外に出て背伸びをしつつ深呼吸をし良い朝を迎え入れることができます。
  • 子供部屋 掃き出し窓がないお部屋は、お子様のお部屋としても安心です!
  • 洋室 収納スペースがついています!居室をスッキリ整頓する事ができますね。
家具を選ばないシンプルなデザインの為、家具を選ばずお気に入りの空間作りができそうですね。
  • リビング以外の居室 2面採光を確保した明るい室内は、風通しも良く、明るく大変居心地の良い空間となっております。リラックスして過ごせる心地の良いお部屋です!朝の目覚めがスッキリしますね。
  • 和室 リビングと隣接した畳コーナーです!家事の休憩スペースやキッズスペースとして活用するのもよさそうですね!明るく温もりを感じられます!
  • 玄関 シューズボックス付きなので、玄関が片付きお掃除がしやすいです!
スッキリした玄関で戸を開けた瞬間、清潔感のある心地いい空間が出迎えてくれます。
  • 収納 収納が充実しているからこそ、お部屋はいつも広々。掃除や片付けもラクになり、居心地の良い暮らしが続きます。
  • バルコニー ルーフバルコニー!屋根が付いているので、急に雨が降っても濡れにくく安心!強い日差しもカットしてくれるので、お天気の良い日は、お外へ出て深呼吸するのもよさそうです!
  • 区画図 カースペースは2台付き!
セカンドカー持ちの方や急な来客時にも安心ですね。
  • 住戸からの眺望写真 晴れた日には青い空を見渡せる開放的な時間を楽しめます。気持ちの良い風が通り抜ける街並みです!
  • リビング 大きな窓からたっぷりの陽ざしが入る明るいリビング。開放感のあるリビングで家族団らんのくつろぎの時間を過ごせます!当日のご見学可能です!是非現地で陽当たりなどご体感くださいませ!
  • キッチン 大人気の対面式システムキッチンを採用しています!ご家族のコミュニケーションが自然と増える設計です。
お子様にも目が届くので嬉しいですね!広々使えて快適で作業が進みます。
  • 洗面台・洗面所 深い洗面台ボウルは、水が跳ねにくいのでお手入れが楽々!清潔感が保てます!
キレイな洗面所で自分磨きのモチベーションが上がりますね!
  • その他内観 階段は明るく手摺りもついています!お子様やご年配の方も安心してご利用頂けますね!
  • その他現地 玄関ドア横の壁面にすっきりと設えられたポスト。
動線を妨げないスマートな配置で、機能性とデザイン性を両立しています。
  • その他 限定1棟のキレイな街並み。是非1度ご内見ください。物件探しのご条件・ご要望・ご質問など、不動産に関することなら、どのようなことでも誠心誠意対応させて頂きます。
  • その他 浴室乾燥や暖房が付いている魅力的な仕様です!冬場はヒートショックの予防にも使えます。
雨の日でもお洗濯物が乾かせるので、洗濯物をため込みにくい!
  • リビング 優しい陽だまりがリビングを包んでくれて居心地の良い空間を演出してくれます!
くつろぎの時間を過ごせます!
  • 周辺環境 -
  • 周辺環境 -
  • 周辺環境 -
  • 周辺環境 -
  • 周辺環境 -
  • 周辺環境 -
  • 周辺環境 -
  • 周辺環境 -
  • 周辺環境 -
お問い合わせ、資料請求、見学のお申し込みはこちらから

電話をかける(携帯・PHS可)
0120-271223
「ホームページを見た」とお伝え下さい。

お問い合わせ番号をお伝えください
RHS-185701-26788

内見予約
お問合せ

セールスポイント

特徴
  • フローリング
  • バリアフリー
  • 給湯器
  • システムキッチン
  • シャンプードレッサー
  • 追い焚き
  • シャワー
  • 浴室乾燥機
  • ガスコンロ
  • コンロ三口
  • 床下収納
  • バルコニー
  • TVドアホン
  • ペット対応
  • カースペース2台
  • 本下水
  • 都市ガス
  • カースペース2台以上
  • 新着物件
セールスコメント 住宅ローンアドバイザーによるローンのご相談承ります。

物件概要

採光面 南西 構造/階数 木造/地上2階建
建ぺい率 60(%) 容積率 150(%)
駐車場 現況/引渡し 新築/即時
土地権利 所有権 私道負担面積 -

接道状況 接道: 東南 公道 道路幅: 6.5m 用途地域
第一種低層住居専用地域
セットバック - 法令上の制限 景観法
地目 宅地 地勢
建築確認番号 都市計画 市街化区域
取引態様 仲介
情報更新日 2026年04月17日 次回更新日 2026年05月01日
※各種情報と差異がある場合は現況優先となります

学区情報

小学校区
()
中学校区
()
※物件情報の学区情報について
当サイト物件情報に記載されております通学区域(学区)情報は、国土数値情報ダウンロードサービスが提供する小学校区データ【2016年度】及び中学校区データ【2016年度】を元に加工したものですので、記載情報が現在の学区域と異なる場合がございます。
国土数値情報ダウンロードサービスのWEBサイト上で記述通り、データは必ずしも正確とは言えません。また、通学区域(学区)は毎年見直しの対象となりますので、そちらを踏まえ学区情報は参考としてご活用下さい。
お問い合わせ、資料請求、見学のお申し込みはこちらから

電話をかける(携帯・PHS可)
0120-271223
「ホームページを見た」とお伝え下さい。

お問い合わせ番号をお伝えください
RHS-185701-26788

内見予約
お問合せ

この物件でローンシミュレーションする

価格 万円
年利率
ボーナス払い 返済年数
頭金 直接入力する 万円

毎月のご返済額

ボーナス(×年2回)

物件価格

3,288万円
※返済金額はあくまでも目安です。

電話をかける(携帯・PHS可)
0120-271223
「ホームページを見た」とお伝え下さい。

お問い合わせ番号をお伝えください
RHS-185701-26788

内見予約
お問合せ

お問い合わせ

お問い合わせ内容
お問合せ内容必須
【備考欄】
詳細な見学ご希望時間、ご質問、ご希望条件などがございましたらお聞かせ下さい。
(2000文字以内)
お客様情報
お名前必須
連絡先必須 メールアドレス

※ご記入いただいたメールアドレス宛てに、お問合せ内容の確認メールをお送りいたします。
※Yahoo!メールなどのフリーメールをご利用の場合、迷惑メールフォルダに入る場合があります。
 迷惑メールのフォルダ・設定等をご確認下さい。
電話番号
FAX(任意)
プライバシーポリシーを必ずご確認ください。内容に同意の上、確認画面へお進み下さい。

お気軽にお問い合わせください

0120-271223
物件番号 RHS-185701-26788
※「ホームページを見た」
とお伝え下さい。
ページトップへ
住宅ローン通します

取手市を中心に新築一戸建て、中古一戸建て、土地などの物件情報を豊富に取り揃えております!住宅ローンについてのご相談などもお気軽にご連絡ください!取手市の不動産はセンチュリー21ハウスモアへお任せください!