| 価格 | 4,549万円 ![]() |
||||
|---|---|---|---|---|---|
| 所在地 | 千葉県柏市名戸ケ谷1丁目
名戸ケ谷周辺の物件を見る |
土地面積 | 134.78m² (40.77坪) | 建物面積 | 105.16u |
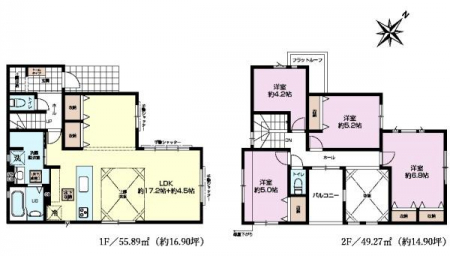
| 築年月 | 2026年1月築 | 間取り | 4LDK (LDK21.7/洋室6.8/洋室5.2/洋室4.2/洋室5) | ||
| 交通 |
東武野田線 新柏 徒歩13分
JR常磐線 南柏 徒歩28分 東武野田線 増尾 徒歩28分 |
||||
電話をかける(携帯・PHS可)
0120-271223
「ホームページを見た」とお伝え下さい。
お問い合わせ番号をお伝えください
RHS-185701-26794
| 特徴 |
|
|---|---|
| セールスコメント | 住宅ローンアドバイザーによるローンのご相談承ります。 |
| 採光面 | 南西 | 構造/階数 | 木造/地上2階建 |
|---|---|---|---|
| 建ぺい率 | 50(%) | 容積率 | 100(%) |
| 駐車場 | 有 | 現況/引渡し | 新築/即時 |
| 土地権利 | 所有権 | 私道負担面積 | - |
| 接道状況 | 接道: 北西 公道 道路幅: 6m 接道: 南西 公道 道路幅: 6m |
用途地域 |
第一種低層住居専用地域
|
| セットバック | - | 法令上の制限 | 宅地造成工事規制区域;高さ最高限度有;日影制限有 |
| 地目 | 宅地 | 地勢 | |
| 建築確認番号 | 都市計画 | 市街化区域 | |
| 取引態様 | 仲介 | ||
| 情報更新日 | 2026年04月17日 | 次回更新日 | 2026年05月01日 |
| 小学校区 | () |
中学校区 | () |
|---|
電話をかける(携帯・PHS可)
0120-271223
「ホームページを見た」とお伝え下さい。
お問い合わせ番号をお伝えください
RHS-185701-26794
| 価格 | 万円 | ||
|---|---|---|---|
| 年利率 | % |
||
| ボーナス払い | 返済年数 | ||
| 頭金 | 直接入力する | 万円 | |

毎月のご返済額 |
ボーナス(×年2回) |
物件価格4,549万円 |
電話をかける(携帯・PHS可)
0120-271223
「ホームページを見た」とお伝え下さい。
お問い合わせ番号をお伝えください
RHS-185701-26794
取手市を中心に新築一戸建て、中古一戸建て、土地などの物件情報を豊富に取り揃えております!住宅ローンについてのご相談などもお気軽にご連絡ください!取手市の不動産はセンチュリー21ハウスモアへお任せください!
【完成しました!本日内見可能です!】
東武アーバンパークライン「新柏駅」まで徒歩13分。
パパママ安心の通学距離、小学校徒歩1分・中学校徒歩7分。